Vorige | Volgende

Arnhemseweg 10 Amersfoort

Vraagprijs € 425 per maand

Bewaar object

Omschrijving

REPRESENTATIEVE KANTOORRUIMTES IN HET HART VAN AMERSFOORT – DE SOEVEREIN

Ben jij op zoek naar moderne, lichte en centraal gelegen kantoorruimte in het bruisende centrum van Amersfoort?

Deze representatieve kantoorruimtes in De Soeverein bieden een professionele uitstraling, uitstekende bereikbaarheid en flexibele indelingsmogelijkheden ideaal voor bedrijven die comfort, zichtbaarheid en een hoogwaardige werkomgeving zoeken.

KENMERKEN
• Centraal gelegen kantoorruimtes in modern kantoorgebouw
• Direct naast PLUS supermarkt en op loopafstand van Amersfoort Centraal
• Flexibele metrages op 2e en 3e verdieping, deelverhuur mogelijk
• Moderne voorzieningen: topkoeling, zonwering, vloerbedekking, systeemplafond
• Parkeren via Q-Park Mondriaan (onder het gebouw)

AFMETINGEN
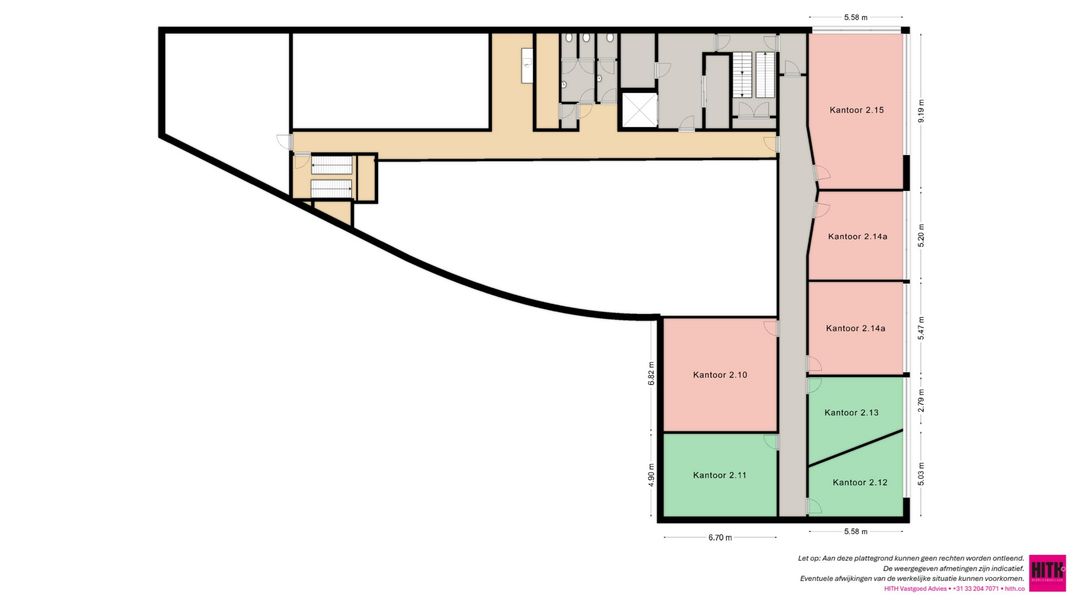
Beschikbare kantoorruimtes:
Tweede verdieping:
• Kantoorkamer 2.01– 35 m² Huurprijs € 575,- per maand / servicekosten € 128,- per maand ( Beschikbaar medio mei 2026 )
• Kantoorkamer 2.07 – 75 m² Huurprijs € 1.175,- per maand / servicekosten € 275,- per maand
• Kantoorkamer 2.11– 38 m² (verhuurd)
• Kantoorkamer 2.12 – 26 m² Huurprijs € 425,- per maand / servicekosten € 95,- per maand
• Kantoorkamer 2.13 – 26 m² (verhuurd)
• Kantoorkamer 2.14 – 92 m² Huurprijs € 1.475,- per maand / servicekosten € 335,- per maand ( binnenkort beschikbaar, per 1 juli 2026)

Alle bedragen zijn exclusief btw.

Derde verdieping:
• Kantoorkamer 3.04 – 54 m² Huurprijs € 875,- per maand / servicekosten € 195,- per maand
• Kantoorkamer 3.05 – 90 m² Huurprijs € 1.425,- per maand / servicekosten € 325,- per maand
• Kantoorkamer 3.06 – 107 m² Huurprijs € 1.695,- per maand / servicekosten € 395,- per maand

Alle bedragen zijn exclusief btw.

OMSCHRIJVING RUIMTE
De kantoorruimtes in De Soeverein zijn licht, modern en efficiënt ingedeeld. Dankzij de vele ramen, het systeemplafond met beeldschermvriendelijke armaturen en de hoogwaardige afwerking biedt iedere ruimte een prettige en professionele werkplek.
Alle verdiepingen zijn voorzien van luxe pantry’s, toiletgroepen en comfortabele klimaatinstallaties met 4-voudige mechanische ventilatie en topkoeling. De ruimtes worden gestoffeerd opgeleverd en zijn geschikt voor diverse typen bedrijven, van zelfstandigen tot grotere teams.
Op elke verdieping is toegang tot gedeelde faciliteiten zoals pantry, ontvangstruimte en gemeenschappelijke ruimten. Gemeubileerd huren behoort tot de mogelijkheden.

OMSCHRIJVING PAND EN ALS GEHEEL
De Soeverein is een modern, representatief kantoorcomplex van circa 10.000 m² kantoorruimte en 3.000 m² winkelruimte.
Het gebouw beschikt over:
• Representatieve entree met vide en natuurstenen vloer
• Twee personenliften
• Toiletgroepen per verdieping
• Luxe pantry’s
• 24/7 toegankelijkheid
• Screens/zonwering
• Professionele uitstraling voor bezoekers en medewerkers

Onder het gebouw ligt de Q-Park Mondriaan parkeergarage, waar vaste plaatsen gehuurd kunnen worden.

OMSCHRIJVING LIGGING
De Soeverein ligt aan een levendige stadsroute, op de grens van het centrum en de Stadsring.
In de directe omgeving vind je:
• Winkels, horeca en voorzieningen
• Amersfoort Centraal Station op loopafstand (8–10 minuten)
• Bushalte direct voor de deur
• Snelweg A1 en A28 op enkele minuten rijden

De bereikbaarheid is uitstekend voor zowel medewerkers als bezoekers.

VOORZIENINGEN
• Moderne klimaatbeheersing met topkoeling
• Kabelgoten en bekabeling aanwezig
• Systeemplafond met beeldschermvriendelijke verlichting
• Gestoffeerd
• Screens/zonnewering
• Deelverhuur mogelijk
• Mogelijkheid tot het gebruik van koffie- en theefaciliteiten
• Schoonmaak van de algemene ruimtes inbegrepen

HUURVOORWAARDEN
Gemeubileerd huren
Optioneel tegen meerprijs. Vraag naar de mogelijkheden bij interesse.

Huurprijscorrectie
Jaarlijkse indexering op basis van de Consumentenprijsindex (CPI) zoals gepubliceerd door het CBS.

Zekerheidsstelling
Er wordt een bankgarantie verlangd ter grootte van drie maanden huur en servicekosten, te vermeerderen met btw.

Gunning
Verhuur vindt plaats onder voorbehoud van goedkeuring door de verhuurder.

RONDLEIDING
Benieuwd naar de mogelijkheden of wil je direct een bezichtiging plannen?
Bel 033-2047071 of laat je gegevens achter via de knop.
Lees de volledige omschrijving

Kenmerken

Algemeen

Hoofdbestemming
kantoorruimte
Functies
kantoorruimte
Aanvaarding
in overleg

Details

Voorzieningen
mechanische ventilatie, topkoeling, kabelgoten, liften, pantry, systeemplafond, te openen ramen, toilet, verwarming
Ligging
overig
Bereikbaarheid
bushalte op 500 m tot 1000 m, busknooppunt op 5000 m of meer, metrohalte op 5000 m of meer, metroknooppunt op 5000 m of meer, NS station op 500 m tot 1000 m, NS voor halte op 5000 m of meer, snelwegafrit op 2000 m tot 3000 m, tramhalte op 5000 m of meer, tramknooppunt op 5000 m of meer
Waardering binnen
goed
Waardering buiten
goed
Bouwjaar
2000
Bouwperiode
vanaf 1991 t/m 2000
In aanbouw
nee

Financieel

Servicekosten
45

Energie

Index
0.99
Klasse
A

Kantoorruimte

Kantoorruimte oppervlakte
300 m²
Kantoorruimte units vanaf
26
Bekijk alle kenmerken

Alle foto's

Kaart Arnhemseweg 10 Amersfoort

naar Arnhemseweg 10 Amersfoort
Op 5 minuten loopafstand Op 5 minuten fietsafstand

Deel dit object

De HITH methode

Elke vastgoedwens is uniek en daarom combineren wij tal van jaren ervaring steeds met een frisse blik en een grondige analyse. Wij zorgen ervoor dat u het gehele traject met een gerust gemoed kunt doorlopen, wetende dat u steeds de optimale oplossing voor uw situatie aangereikt krijgt.

Dat verloopt zo:

01 | Een goed gesprek

Kom koffie drinken! Want een goed gesprek is het halve werk. In een kosteloos kennismakingsgesprek bespreken we uw persoonlijke situatie, wensen en eisen. Daarna stellen we samen een concreet plan van aanpak op. Wij weten als geen ander hoe snel de vastgoedmarkt verandert. Laat geen kans schieten en klik hier om een (persoonlijke of video call) afspraak te maken bij een van onze adviseurs.

02 | Meteen duidelijkheid

Voor elke vastgoedvraag hebben wij een passende, gestructureerde aanpak in combinatie met een nauwgezette planning. Bij ons geen ingewikkelde prijsconstructies of verrassingen achteraf. Het kostenplaatje presenteren we u nog voor we van start gaan. Zo weet u meteen wat te verwachten. Duidelijkheid en eerlijkheid. Daar houden we van.

03 | Gefeliciteerd!

Gelukt! Wij vonden voor u het ideale pand of de juiste huurder/koper. Na een succesvolle onderhandeling is het tijd om te tekenen. Wij zorgen ervoor dat ook dit feestelijke moment goed verloopt. Handtekening gezet? Tijd om te proosten!